Евгений Ростовский: «В загородном доме люди реализуют свои детские мечты»
Функционал объекта недвижимости и его категория диктуют работу с внутренним пространством. Почему квартира – это компромисс между количеством метров и желанием уместить на них все нужное? Зачем в загородном доме тайная комната? И как превратить посещение спа в медитацию? Подробности – в материале, подготовленном Евгением Ростовским, архитектором, руководителем архстудии STUDIO ROSTOVSKII.
Рациональные сценарии

Ростовский Евгений
При нынешней стоимости квадратного метра планировка квартиры просто не может быть «дурной». Вот вы купили небольшую «двушку» бизнес-класса, скажем, около 60 метров за 30 млн рублей. Планировка от застройщика будет такой: кухня + две комнаты. И с вероятностью 80% мы будем ее менять в соответствии с современными сценариями жизни в большом городе.
И вот как.
Кухня как самоцель уходит в прошлое. При современном ритме жизни, когда утром мы пьем кофе и бежим по делам, обедаем на встречах, а ужинаем в ресторанах, мои клиенты все чаще делают выбор в пользу кухни-гостиной, гардеробной, рабочего места или кабинета, отказываясь от полноценной изолированной кухни.
При работе с планировочным решением «под нож» в первых рядах идет коридор. В новых ЖК, как правило, проще превратить транзит из пункта «А» в пункт «Б» в полезную площадь, заполняя ее функцией. В старом фонде, где много анфиладных планировок, сделать это сложнее, но мы выдумываем.
В современных планировочных решениях площадь комнат становится меньше, а самих сценариев больше. Так, спальни перестают быть просторной комнатой со шкафом и креслом, где «живут» всякие вещи. Предпочтение будет отдано небольшой комнате (часто до 15 кв. м), но с отдельной изолированной гардеробной.
Санузлов в идеале должно быть минимум два (гостевой и основной). Лоджии или балконы, как правило, «вшиваются» в теплый контур квартиры и превращаются в рабочие пространства и кабинеты, подтверждая тенденцию «площадь меньше, сценариев больше».
Следуя этим принципам, например, была спроектирована квартира в ЖК Grand House.
Помните советские дома-коммуны? Что это, если не сегодняшние клубные дома, где стоимость квадратного метра с ходу Х3? В 1920-е конструктивисты стали проектировать дома с общей кухней-столовой, прачечной, кинозалом и библиотекой. То есть с инфраструктурой. Сегодня эта идея формирует люксовое предложение на рынке жилья. На территории такого ЖК будет свой фитнес-зал, конференц-зал, курительная комната и даже музыкальный кабинет для тех, кому требуется репетировать.
Еще один пример перерождения – это кладовые. Антресоли под потолком или нарезка маленьких шкафов «переехали» из квартиры в МОПы.
Покупая жилые квадратные метры, можно приобрести и просторный шкаф за пределами квартиры для хранения всякого хлама, который пригодится раз в год: елка, покрышки, инструменты... То есть потребность в дополнительном месте для хранения вещей, о которых мы часто даже не помним, никуда не делась.
Детские мечты
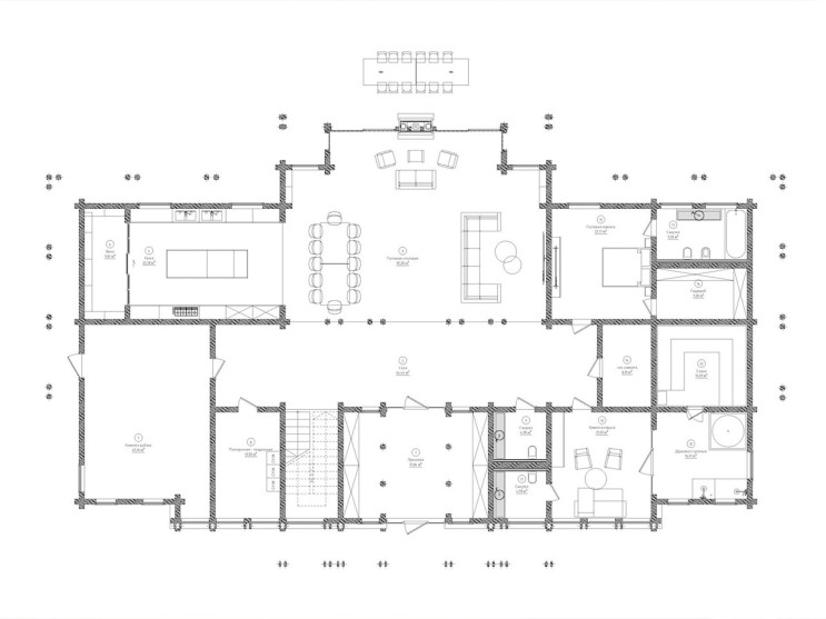
Если квартира – это почти всегда компромисс между количеством квадратных метров и желанием уместить там все, то в загородном доме люди реализуют свои детские мечты, обустраивая то, что в городе было избыточно: игровую/медиа-комнату, кабинет, мастерскую, гостевую. Это тот случай, когда «детские фантазии» становятся техзаданием.
При этом база рациональная: единое пространство кухни-столовой-гостиной как сердце дома, мастер-блок (спальня + гардеробная + санузел), удобные подсобные помещения и грамотная инженерия. Но дальше начинается то, ради чего и строят: терраса как продолжение гостиной, связь с банным/спа-блоком, продуманная логистика участка, хранение для сезонных вещей.
При проектировании дома клиент реже идет на компромисс и больше инвестирует в «свои» сценарии. Поэтому загородная планировка всегда более индивидуальна, а задача архитектора – собрать хотелки в работающую систему, чтобы дом был удобным каждый день, а не только на визуализациях.
Как-то раз мы проектировали дом с условно потайной комнатой. О ней знали все, но туда никто не мог зайти, кроме главы семьи. Вход был обустроен через шкаф. А внутри были установлены плейстейшн, бар и мощная вентиляция. Другой пример – комната рыбака. Из площади в 1500 «квадратов» 35 метров было отдано под хобби главы семьи.
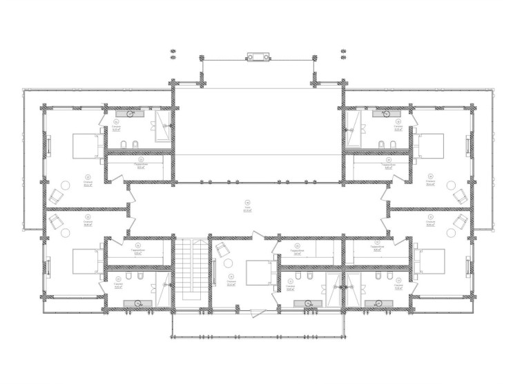
В число «обязательных» зон в загородном доме входят:
- общая гостиная (как правило, двусветная и с камином), чтобы вся семья могла проводить время вместе;
- баня/сауна. За 20+ лет практики я не могу припомнить дом, который проектировали бы без бани. Это безусловный мастхэв с большим количеством вариаций. Кто-то предпочитает отдельно стоящий полноценный спа. Кто-то сауну на территории дома. В общем, кому на что хватает фантазии и денег;
- терраса для шашлыков. В любом загородном доме будет терраса для гриля и посиделок с друзьями. Ведь шашлыки у нас в крови. И, как и в случае с баней, вариативность этой зоны зависит от бюджета и предпочтений. Однажды в Сколково я проектировал отдельную беседку размером более 100 кв. м для жарки мяса и обедов с гостями. Устанавливали профессиональное оборудование для приглашенного повара;
- запрос на рациональное потребление. Все чаще клиентов интересует не только, как будет выглядеть их дом и из чего он будет сделан, но и как он будет функционировать, сколько и чего именно потреблять. Причем этот запрос касается не только энерго- и водопотребления, но и самих стройматериалов. Зеленый стандарт, ресайклинг уже давно вышли за рамки популизма и стали элементом бережного отношения к природе при проектировании и строительстве.
Здоровые ритуалы
Индустрия Wellness&SPA активно развивается с каждым годом. Высокая конкуренция диктует формирование высокого сервиса и комплексного разнообразного предложения для проведения времени в спа-комплексах. Если 15 лет назад мы ходили париться в баню, где имелись парная, сауна и хаммам, сегодня мы едем в спа, и это целый ритуал. Проектируются такие комплексы, как и любой коммерческий объект, исходя из задачи создать среду под определенный чек клиента.
Сегодня сами сауны имеют уникальный дизайн-код, собираются из ценных сортов дерева, иногда чуть ли не из цельного бревна. Добавляются ароматика и звуковое сопровождение. Плюс всевозможные парения, массажи, купели – все, что направлено на сенсорику и телесные ощущения. Сопровождается пребывание визуальной эстетичной «картинкой», взаимодействием с природой. Например, в нашем портфолио четыре разнообразные сауны в рамках проекта спа-комплекса на 2000 кв. м: марокканская, балийская, русская в камне и русская в дереве.
Наблюдается тенденция на здоровое питание и напитки. Поэтому в проекты добавляют зону фитобара – как продолжение ритуала парения. При этом алкоголь все чаще исключается из сценариев такого отдыха.
Приватность дороже всего. Помимо общих зон, включающих бассейн, разнообразные парные и купели, сегодня в спа-комплексах проектируют сьюты по 60-80 кв. м, которые арендуют компании или пары для частного отдыха.
Любой коммерческий объект не может функционировать без технического персонала. Однако в проектах современных спа он становится условно невидимым. Клиентские и технические маршруты разводят. Оборудуют разные входы и т. п.








